
Застройщик
РИА Вега
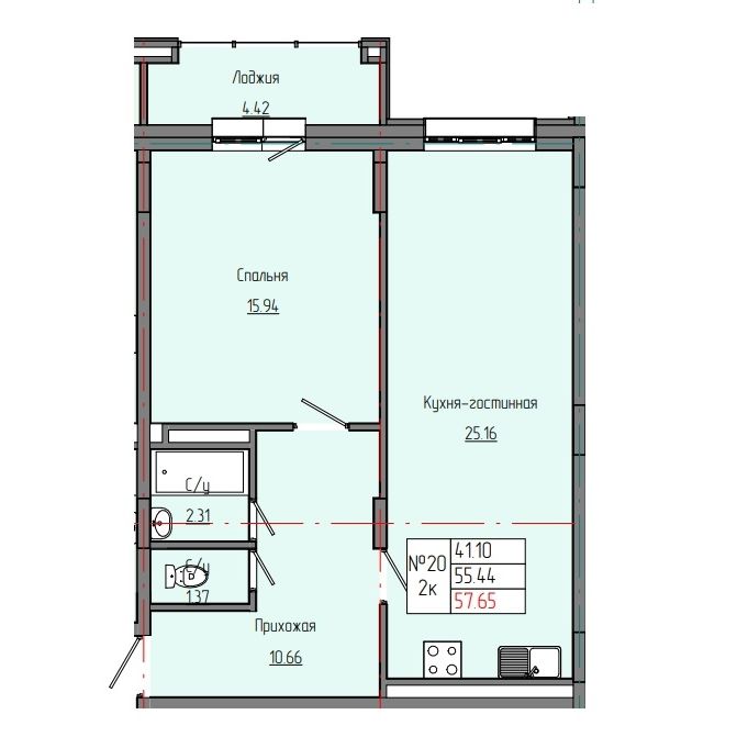
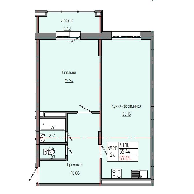
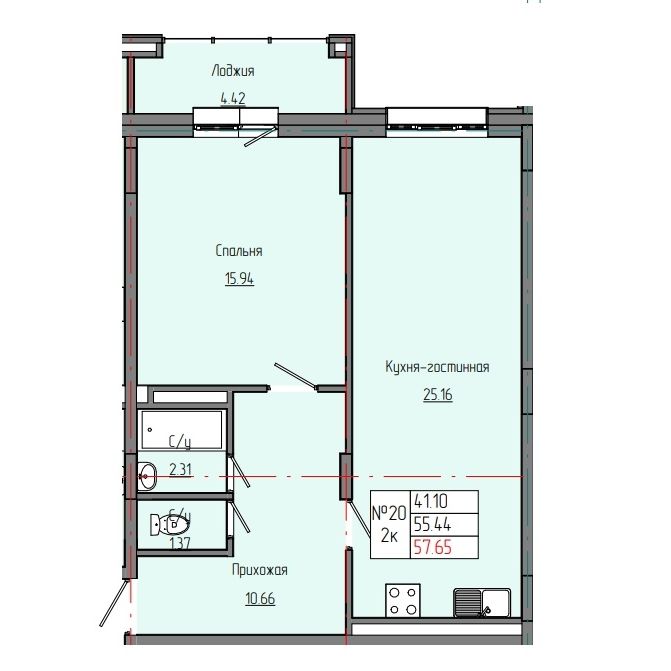
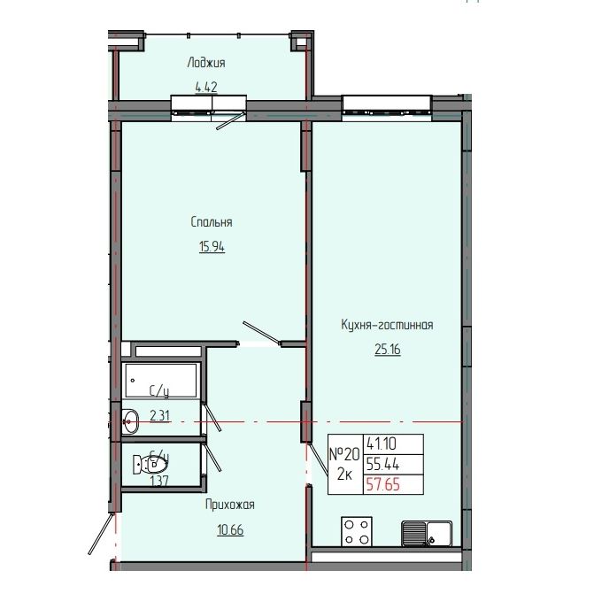
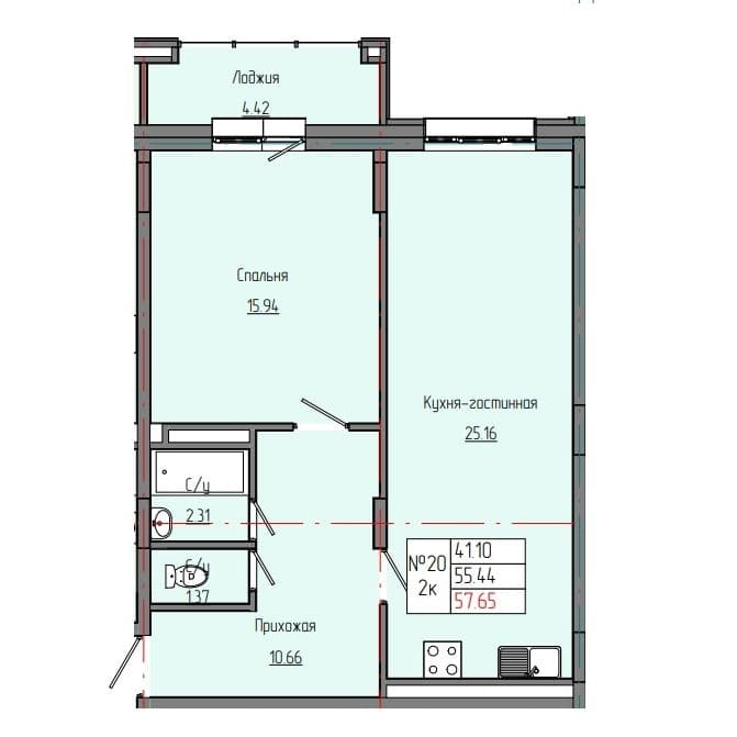
Звездный, С4





















Общая площадь:
57.65 м²
Жилая площадь:
46.12 м²
Этаж:
3 этаж
Подъезд:
1 подъезд
Номер квартиры:
20
Высота потолков:
2.7 м
Санузел:
Совмещенный
Вид из окна:
Во двор
Газ:
Центральное газоснабжение
Отопление:
Центральное отопление