
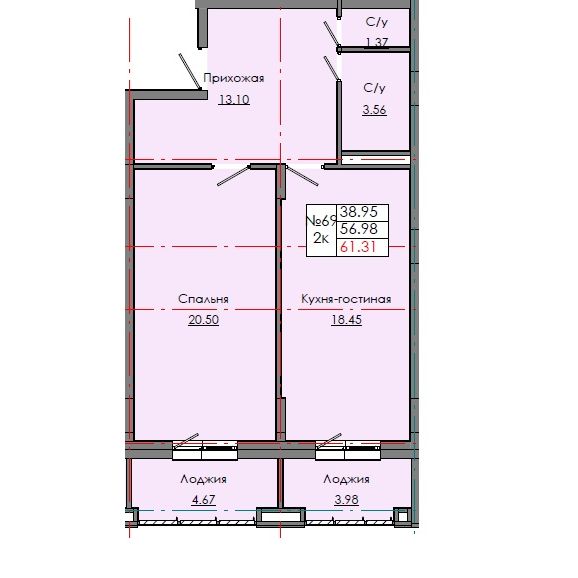
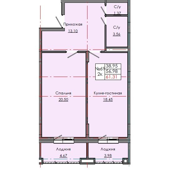
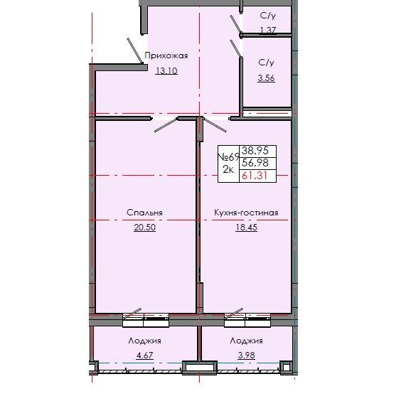
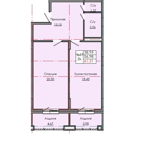
Застройщик
РИА Вега
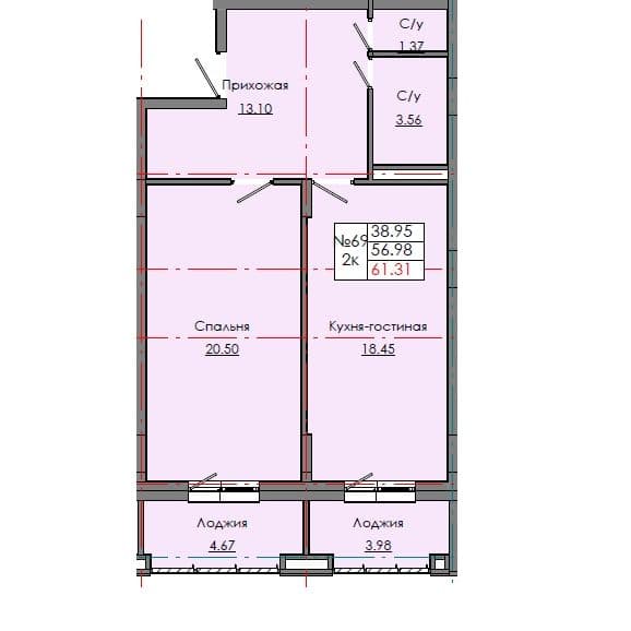
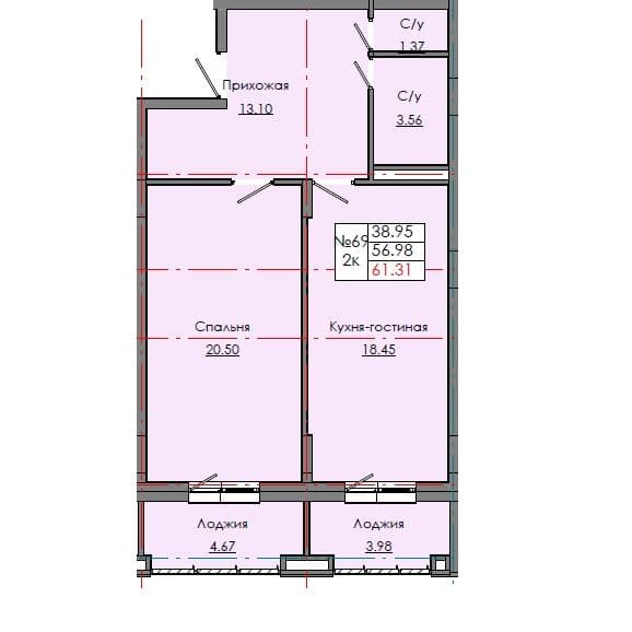
Звездный, С5





















Общая площадь:
61.31 м²
Жилая площадь:
49.05 м²
Этаж:
4 этаж
Подъезд:
2 подъезд
Номер квартиры:
69
Высота потолков:
2.7 м
Санузел:
Совмещенный
Вид из окна:
Во двор
Газ:
Центральное газоснабжение
Отопление:
Центральное отопление