
Застройщик
РИА Вега
Звездный, С1А





















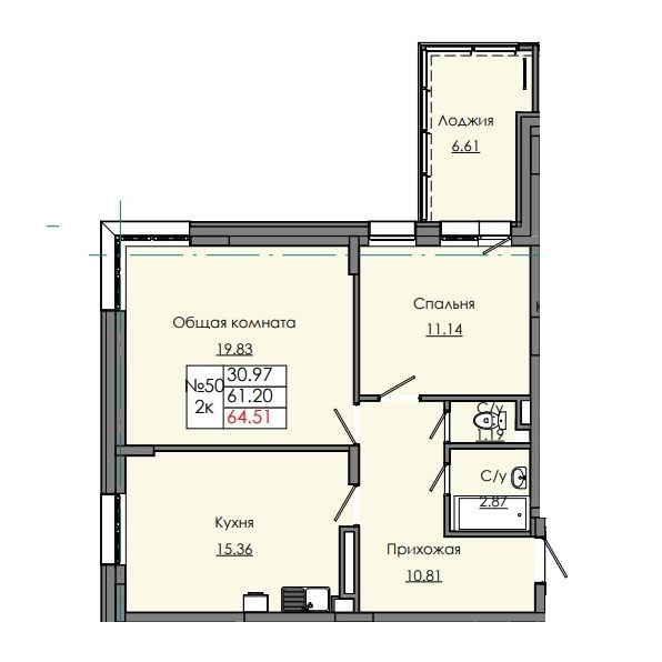
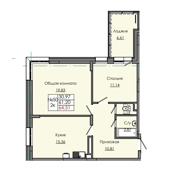
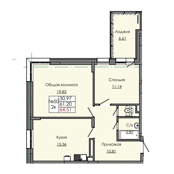
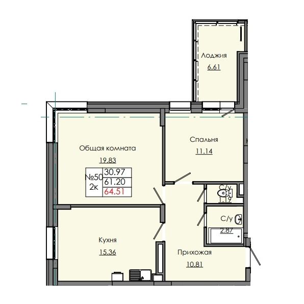
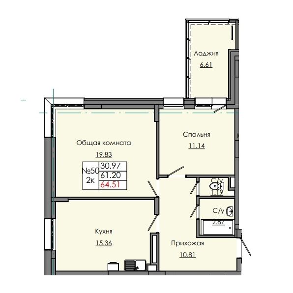
Общая площадь:
64.51 м²
Жилая площадь:
51.61 м²
Этаж:
6 этаж
Подъезд:
1 подъезд
Номер квартиры:
50
Высота потолков:
2.7 м
Санузел:
Совмещенный
Вид из окна:
Во двор
Газ:
Центральное газоснабжение
Отопление:
Центральное отопление