
Застройщик
РИА Вега
Звездный, С1А





















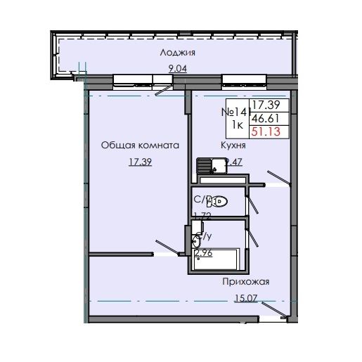
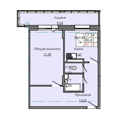
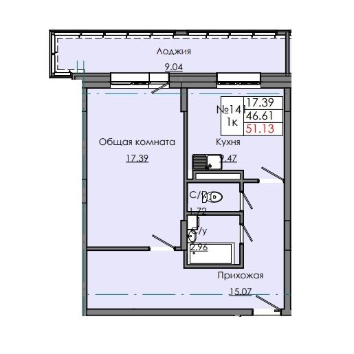
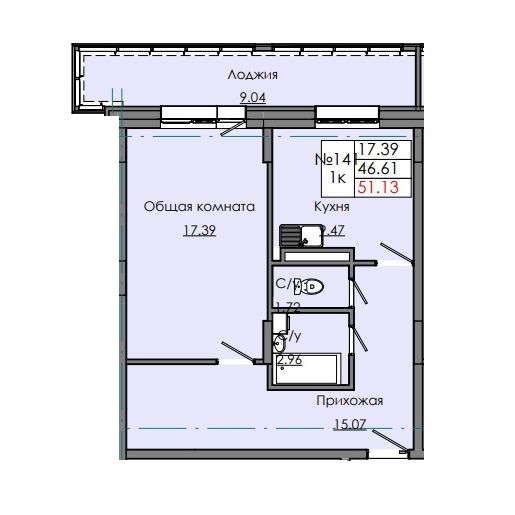
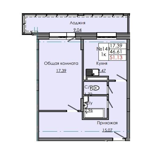
Общая площадь:
51.13 м²
Жилая площадь:
40.90 м²
Этаж:
7 этаж
Подъезд:
2 подъезд
Номер квартиры:
141
Высота потолков:
2.7 м
Санузел:
Совмещенный
Вид из окна:
Во двор
Газ:
Центральное газоснабжение
Отопление:
Центральное отопление