
Застройщик
РИА Вега
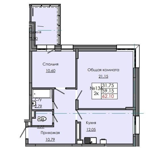
Звездный, С1А





















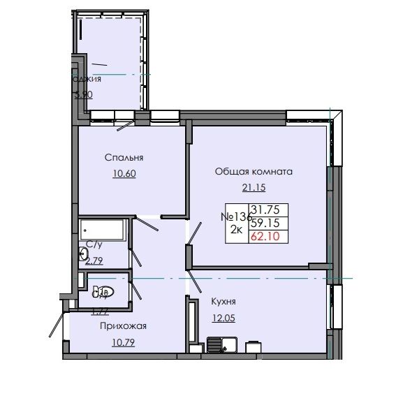
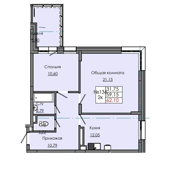
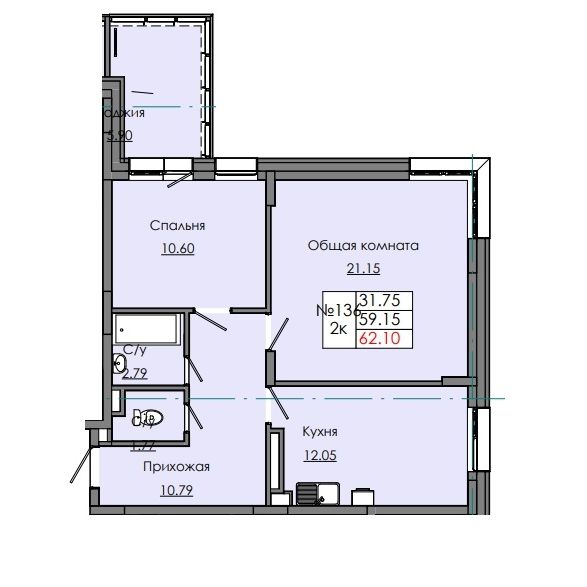
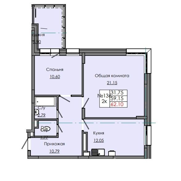
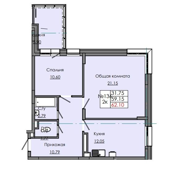
Общая площадь:
62.10 м²
Жилая площадь:
49.68 м²
Этаж:
6 этаж
Подъезд:
2 подъезд
Номер квартиры:
136
Высота потолков:
2.7 м
Санузел:
Совмещенный
Вид из окна:
Во двор
Газ:
Центральное газоснабжение
Отопление:
Центральное отопление