
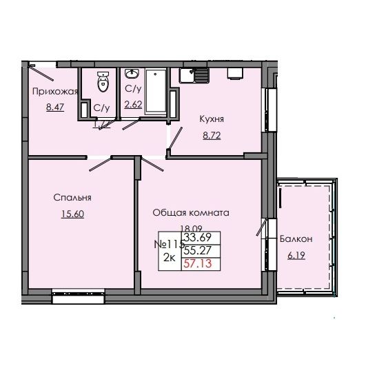
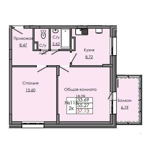
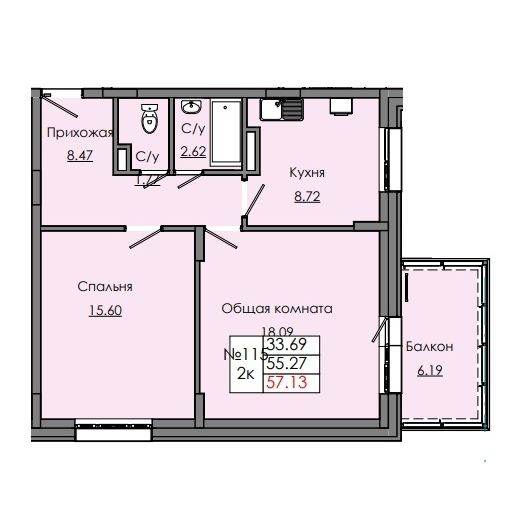
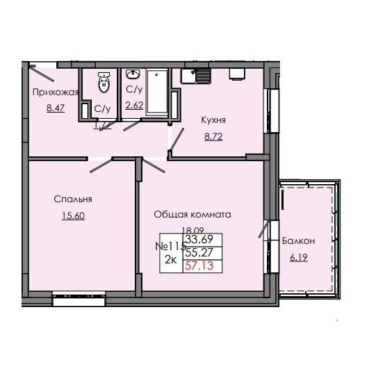
Застройщик
РИА Вега
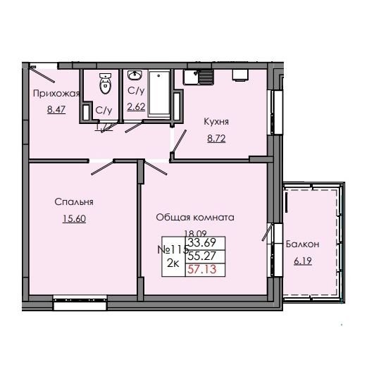
Звездный, С1А





















Общая площадь:
57.13 м²
Жилая площадь:
45.70 м²
Этаж:
4 этаж
Подъезд:
2 подъезд
Номер квартиры:
115
Высота потолков:
2.7 м
Санузел:
Совмещенный
Вид из окна:
Во двор
Газ:
Центральное газоснабжение
Отопление:
Центральное отопление