
Застройщик
РИА Вега
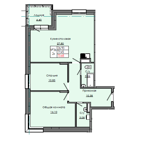
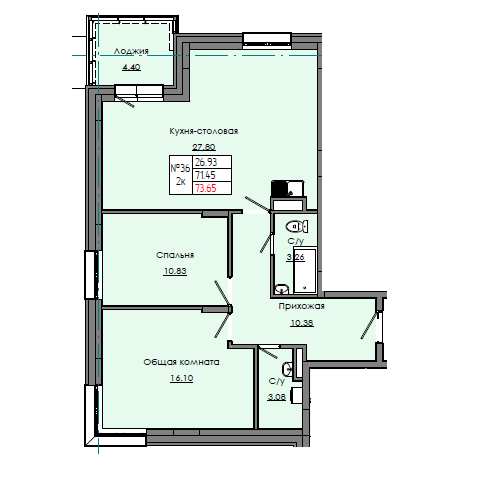
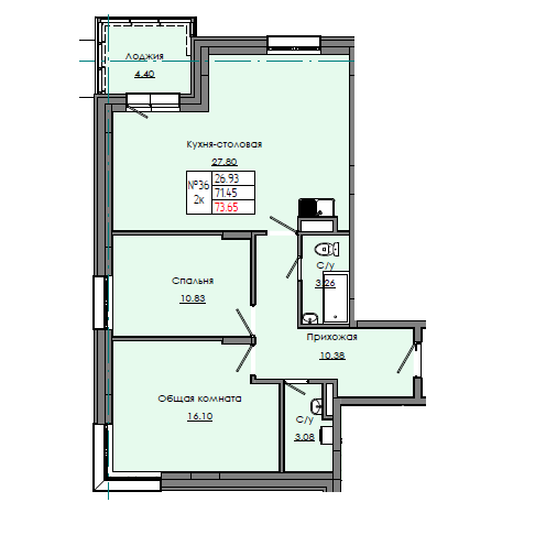
Звездный, С1Б





















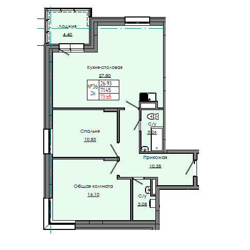
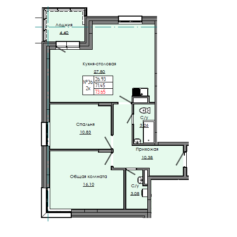
Общая площадь:
73.65 м²
Жилая площадь:
58.92 м²
Этаж:
5 этаж
Подъезд:
1 подъезд
Номер квартиры:
36
Высота потолков:
2.7 м
Санузел:
Совмещенный
Вид из окна:
Во двор
Газ:
Центральное газоснабжение
Отопление:
Центральное отопление