
Застройщик
РИА Вега
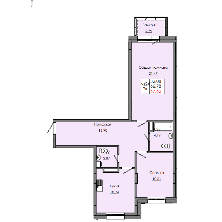
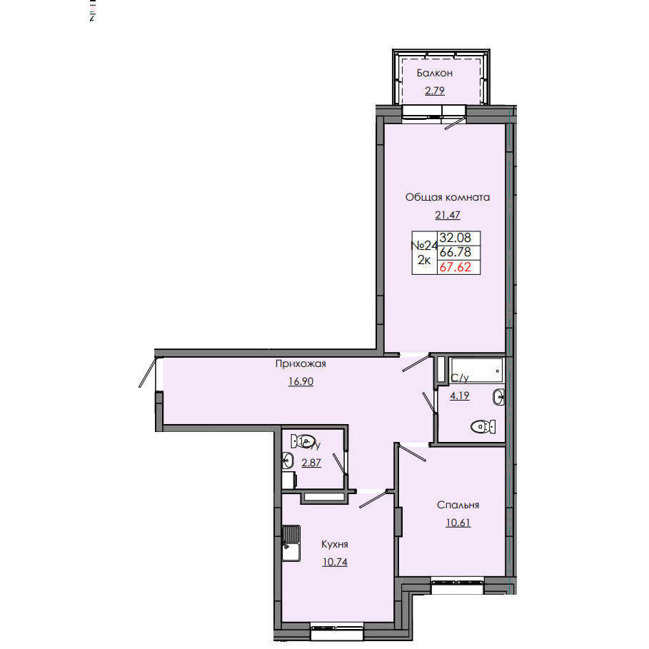
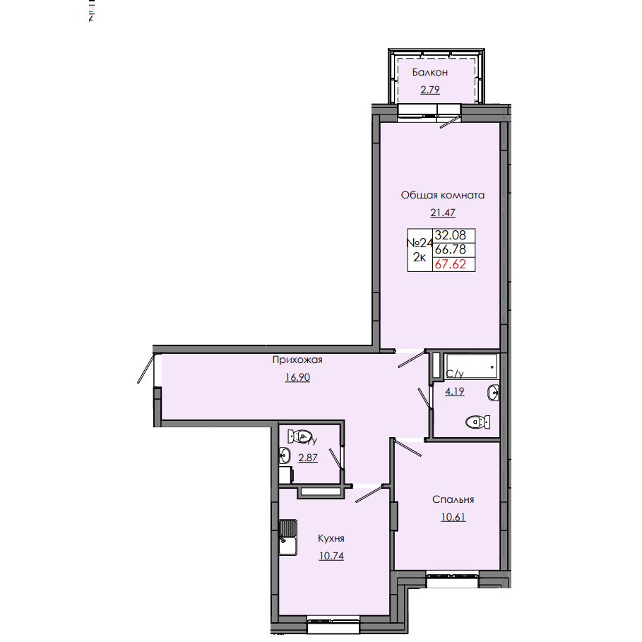
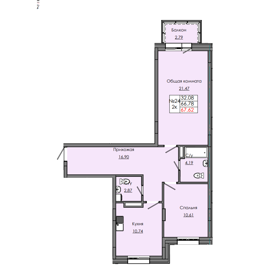
Звездный, С1Б





















Общая площадь:
67.62 м²
Жилая площадь:
54.10 м²
Этаж:
3 этаж
Подъезд:
1 подъезд
Номер квартиры:
24
Высота потолков:
2.7 м
Санузел:
Совмещенный
Вид из окна:
Во двор
Газ:
Центральное газоснабжение
Отопление:
Центральное отопление