Застройщик
РИА Вега
Первоначальный взнос: ~1 392 000 ₽
Ежемесячный платеж по ДВИ: ~27980 ₽
Звездный, С1Б





















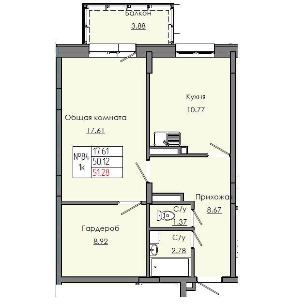
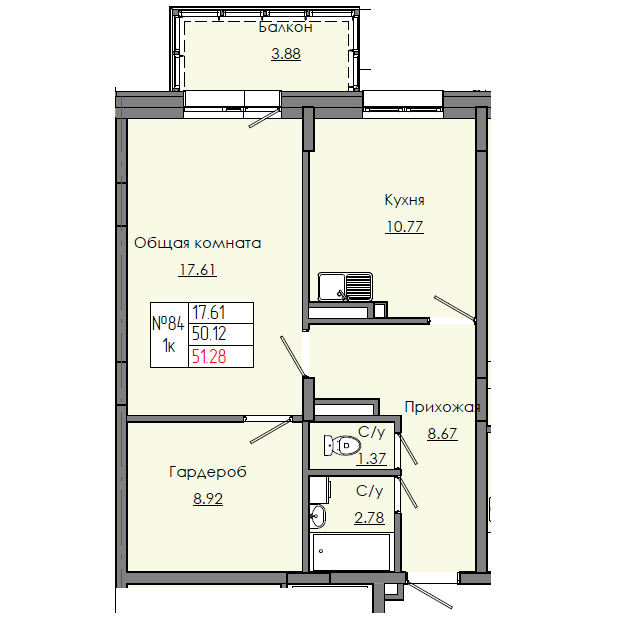
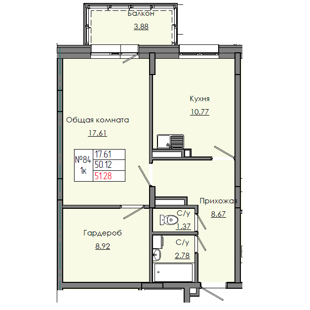
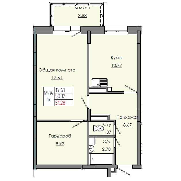
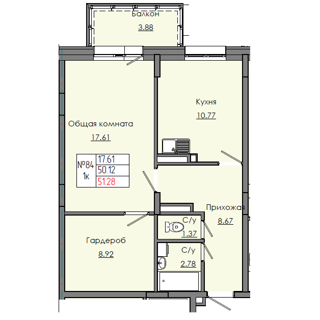
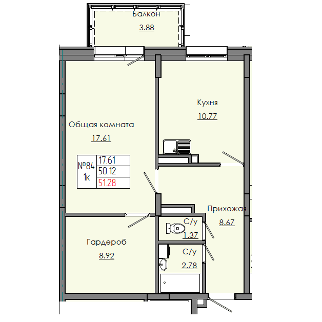
Общая площадь:
51.28 м²
Жилая площадь:
41.02 м²
Этаж:
6 этаж
Подъезд:
2 подъезд
Номер квартиры:
84
Высота потолков:
2.7 м
Санузел:
Совмещенный
Вид из окна:
Во двор
Газ:
Центральное газоснабжение
Отопление:
Центральное отопление