
Застройщик
РИА Вега
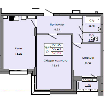
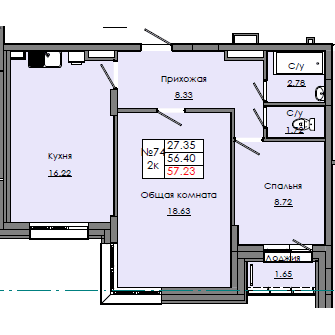
Звездный, С1Б





















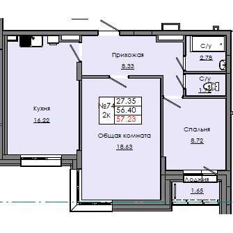
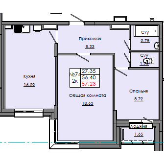
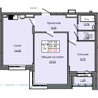
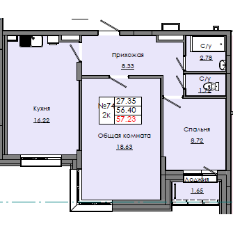
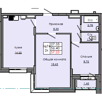
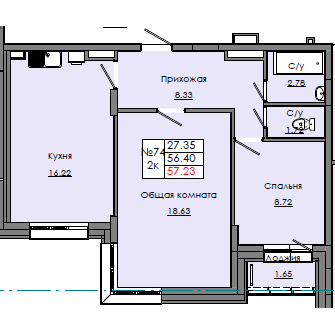
Общая площадь:
57.23 м²
Жилая площадь:
45.78 м²
Этаж:
4 этаж
Подъезд:
2 подъезд
Номер квартиры:
74
Высота потолков:
2.7 м
Санузел:
Совмещенный
Вид из окна:
Во двор
Газ:
Центральное газоснабжение
Отопление:
Центральное отопление