
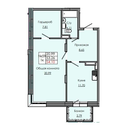
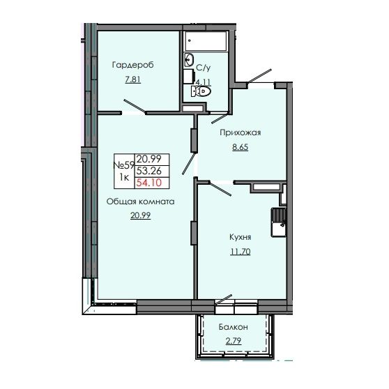
Застройщик
РИА Вега
Звездный, С1Б





















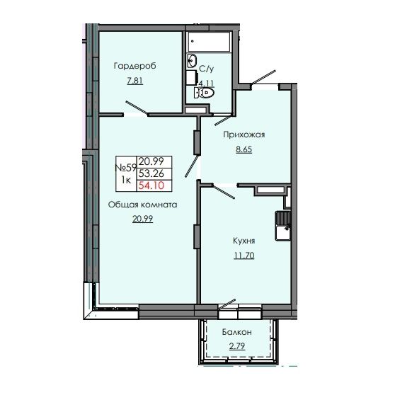
Общая площадь:
54.10 м²
Жилая площадь:
43.28 м²
Этаж:
3 этаж
Подъезд:
2 подъезд
Номер квартиры:
59
Высота потолков:
2.7 м
Санузел:
Совмещенный
Вид из окна:
Во двор
Газ:
Центральное газоснабжение
Отопление:
Центральное отопление