
Застройщик
РИА Вега
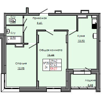
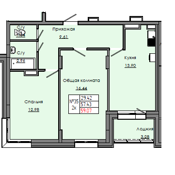
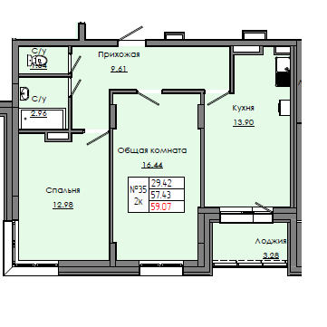
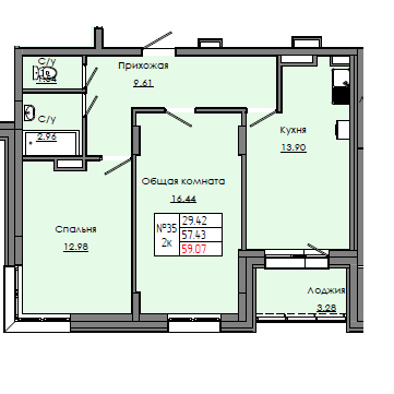
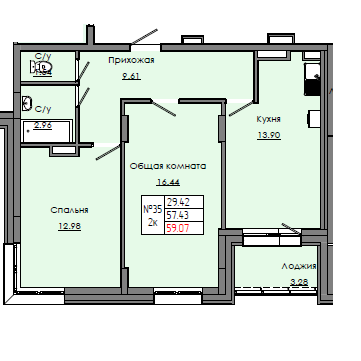
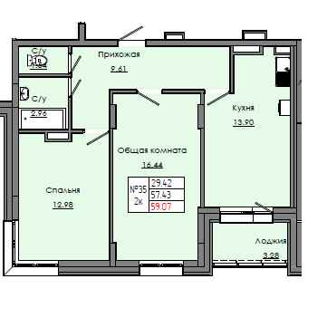
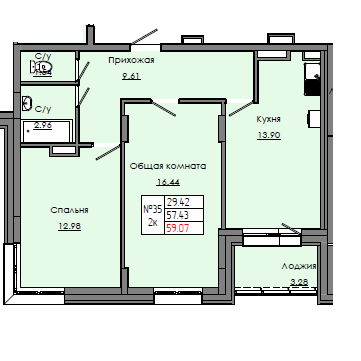
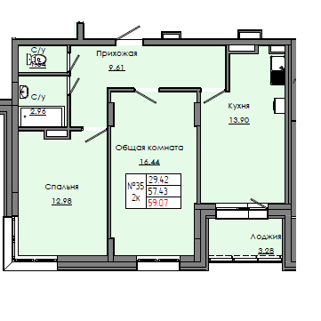
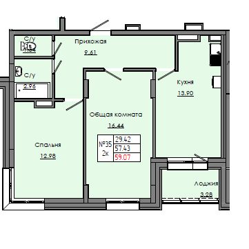
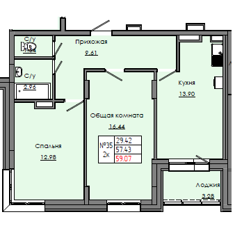
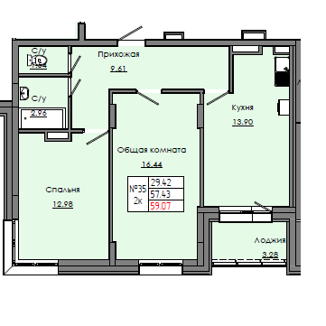
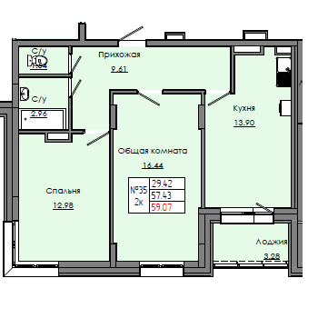
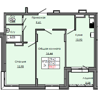
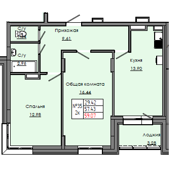
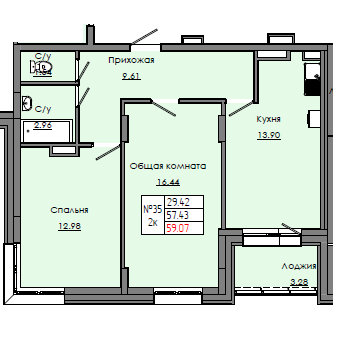
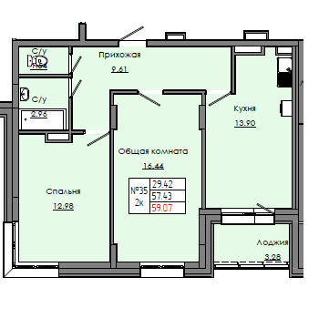
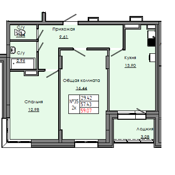
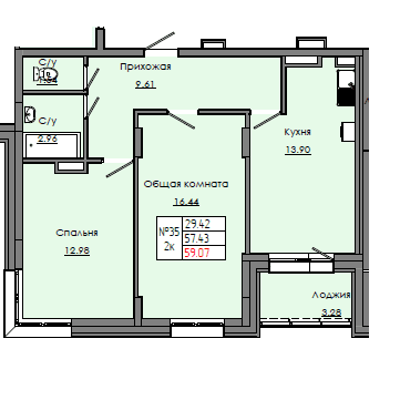
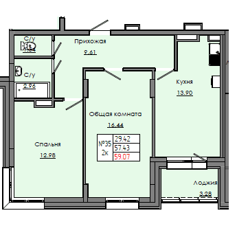
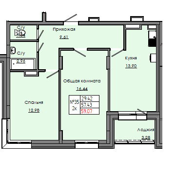
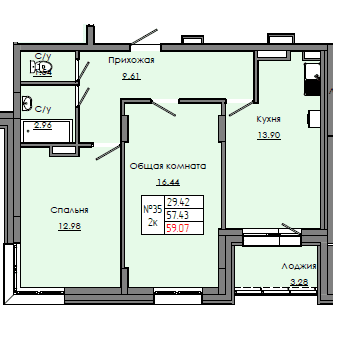
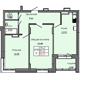
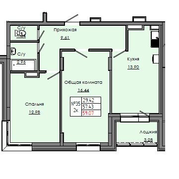
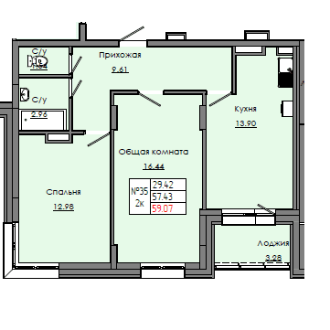
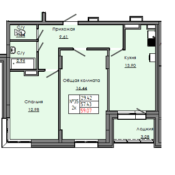
Звездный, С1В





















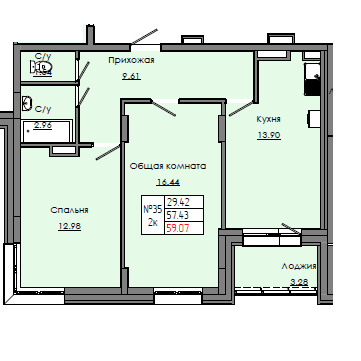
Общая площадь:
59.07 м²
Жилая площадь:
47.26 м²
Этаж:
5 этаж
Подъезд:
1 подъезд
Номер квартиры:
35
Высота потолков:
2.7 м
Санузел:
Совмещенный
Вид из окна:
Во двор
Газ:
Центральное газоснабжение
Отопление:
Центральное отопление