
Застройщик
РИА Вега
Звездный, С1В





















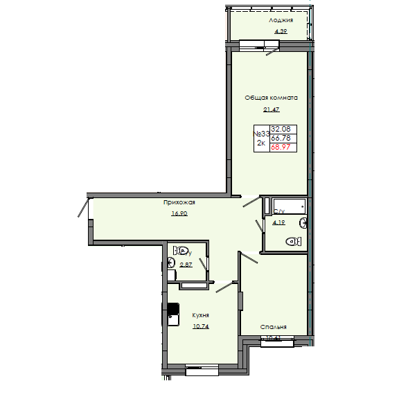
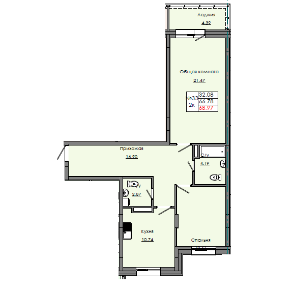
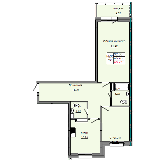
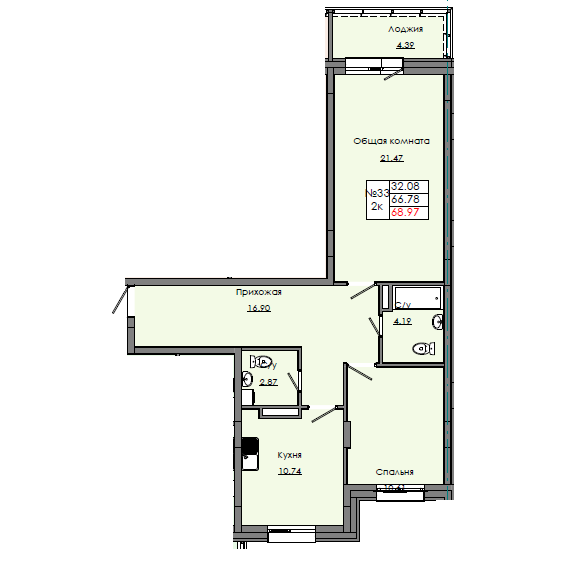
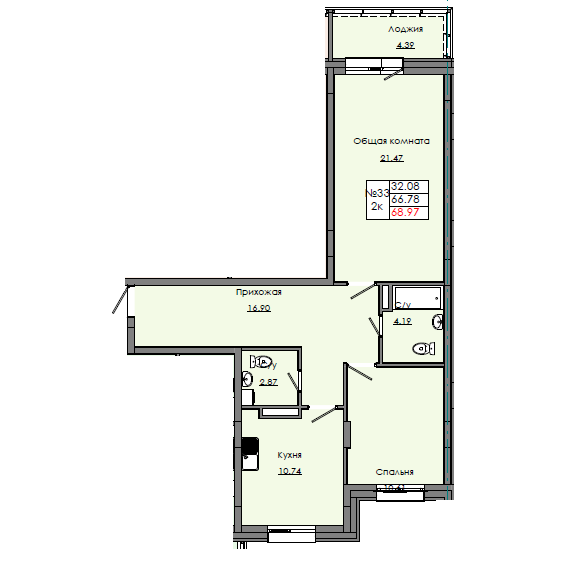
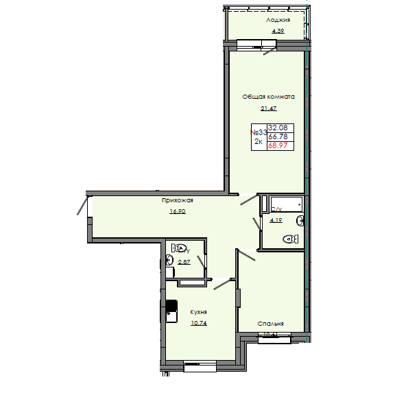
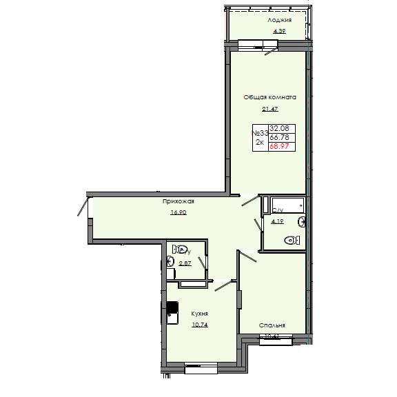
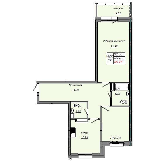
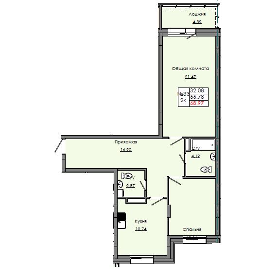
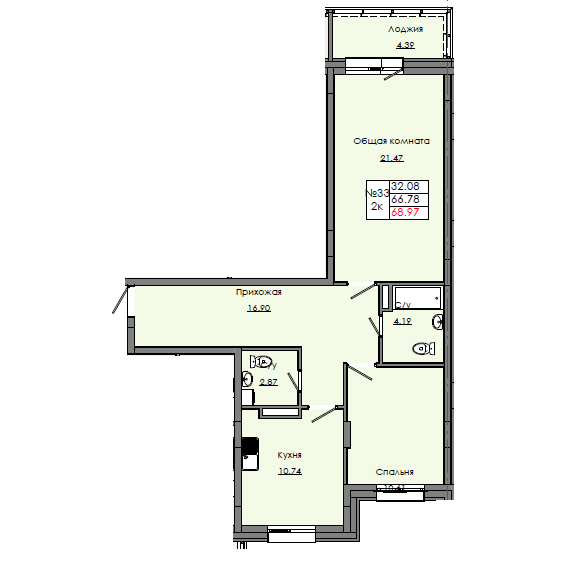
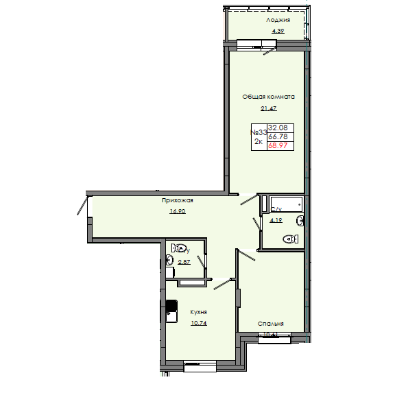
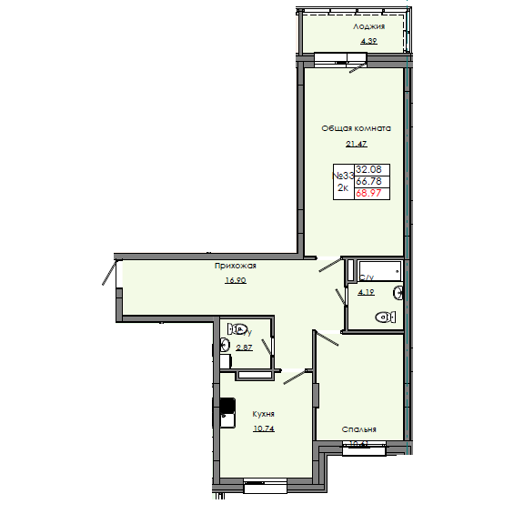
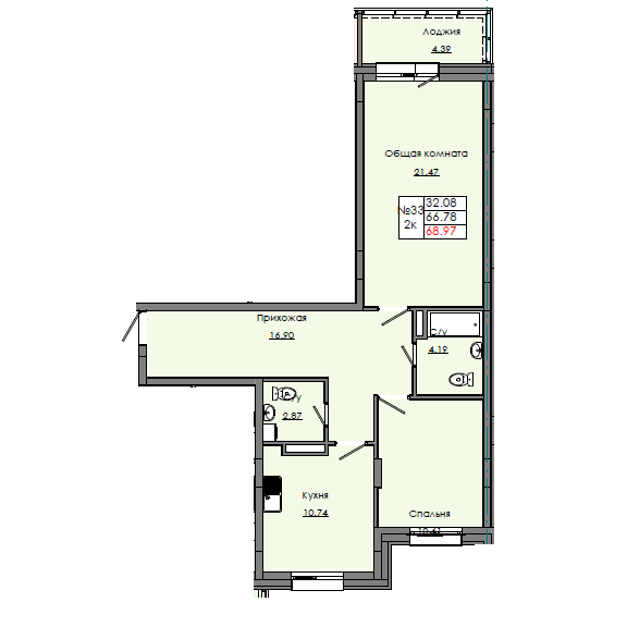
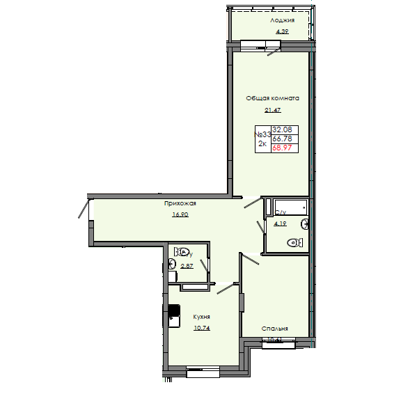
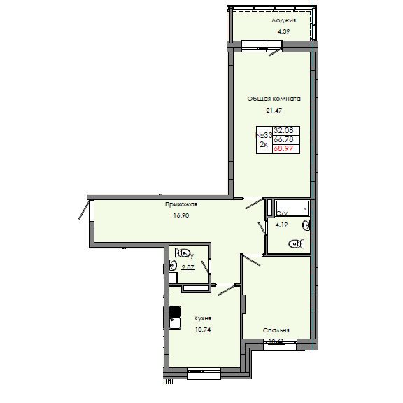
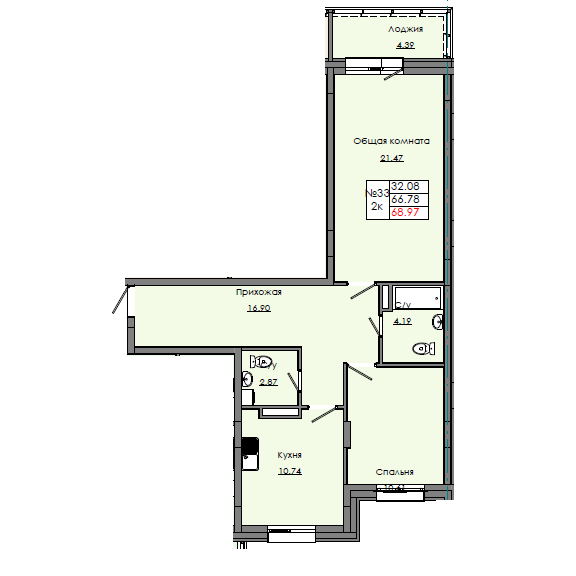
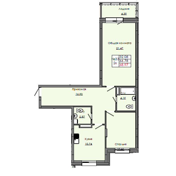
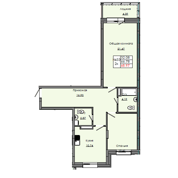
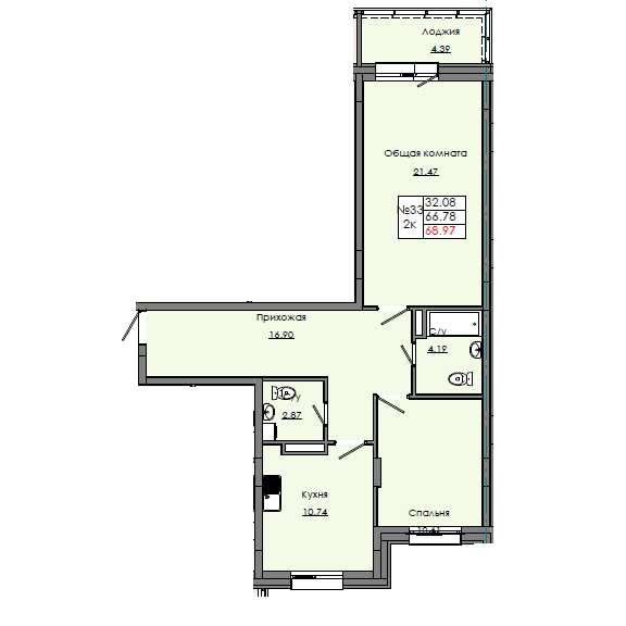
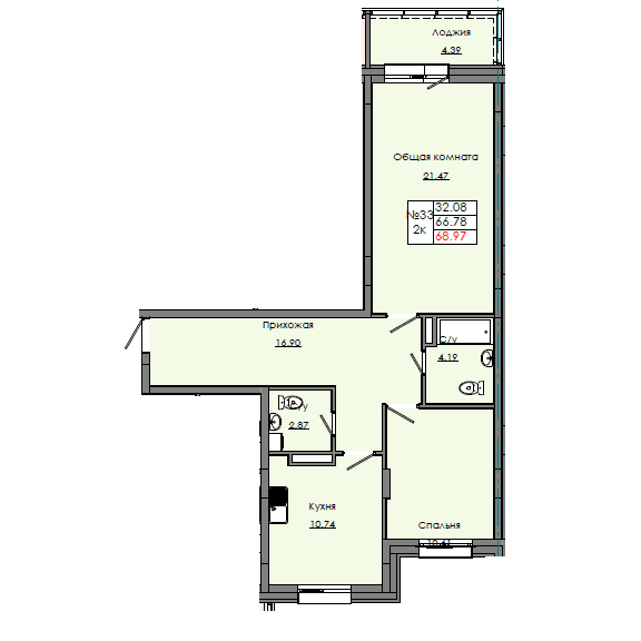
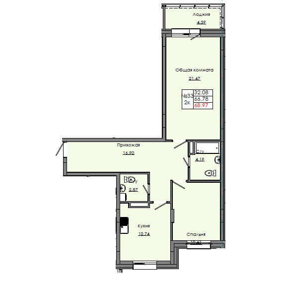
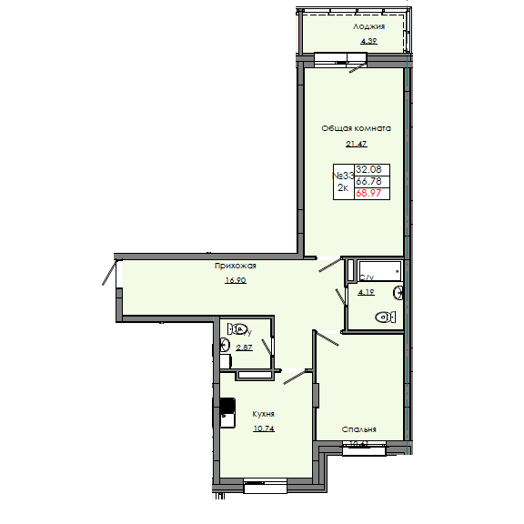
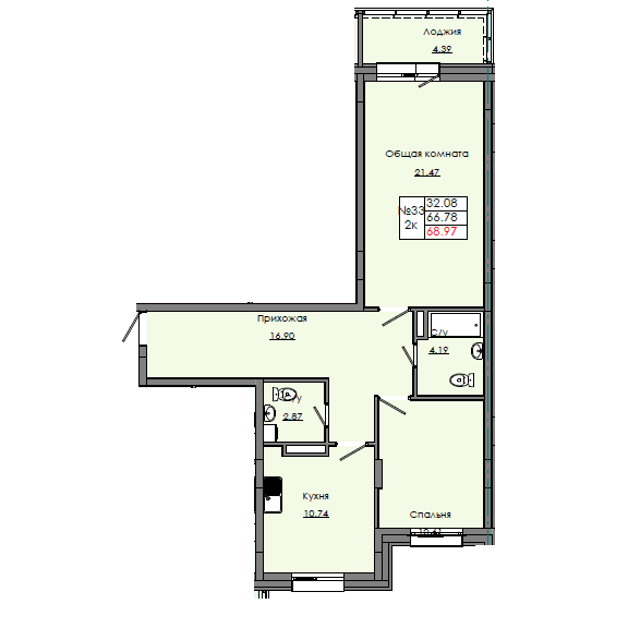
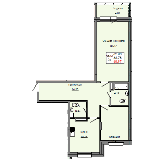
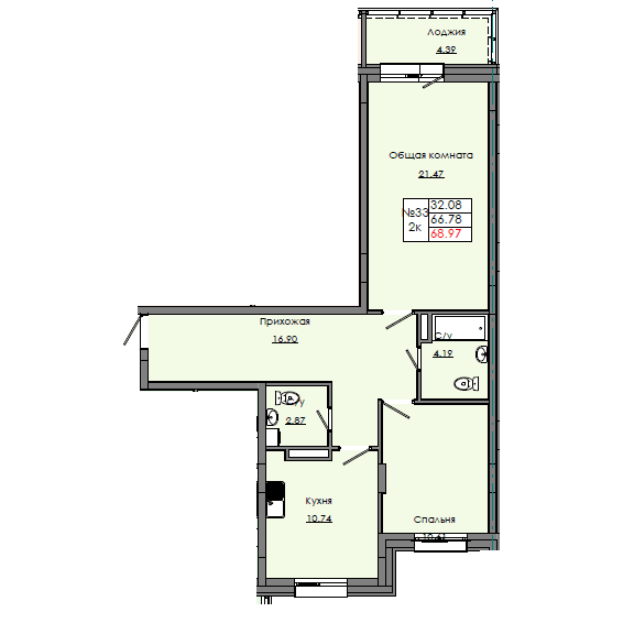
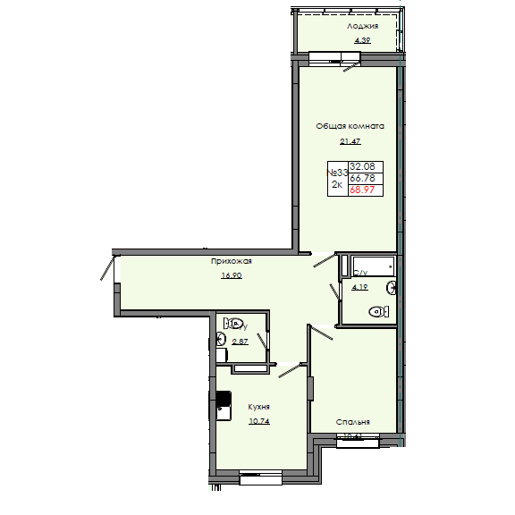
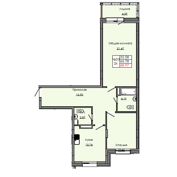
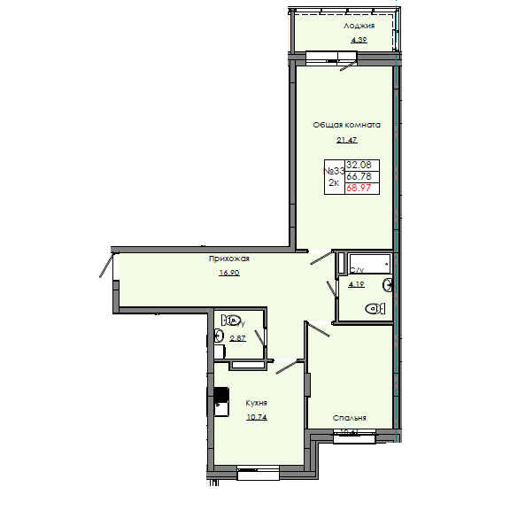
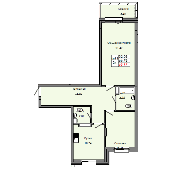
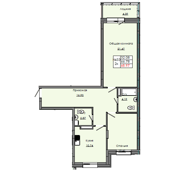
Общая площадь:
68.97 м²
Жилая площадь:
55.18 м²
Этаж:
4 этаж
Подъезд:
1 подъезд
Номер квартиры:
33
Высота потолков:
2.7 м
Санузел:
Совмещенный
Вид из окна:
Во двор
Газ:
Центральное газоснабжение
Отопление:
Центральное отопление