Застройщик
Текта
Первоначальный взнос: ~1 646 000 ₽
Ежемесячный платеж по ДВИ: ~30354 ₽
Якутск, ул. Чернышевского, 56/2

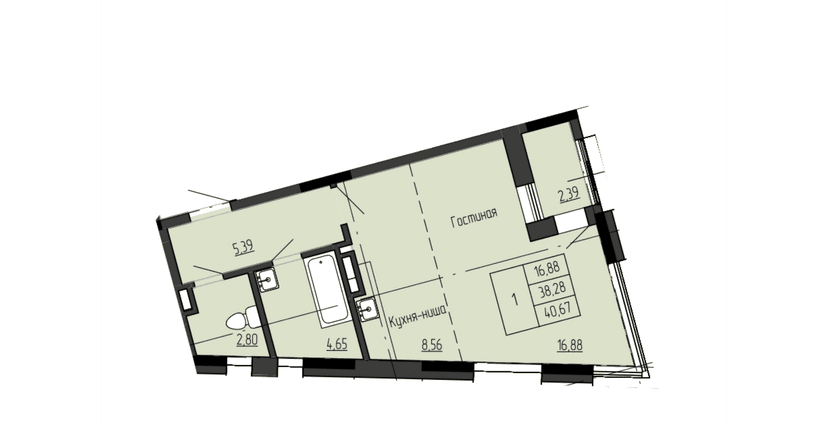
Общая площадь:
40.67 м²
Жилая площадь:
16.88 м²
Этаж:
5 этаж
Подъезд:
4 подъезд
Номер квартиры:
270
Высота потолков:
2.8 м
Санузел:
Не указано
Вид из окна:
Не указано
Газ:
Не указано
Отопление:
Не указано