Застройщик
Текта
Первоначальный взнос: ~3 331 000 ₽
Ежемесячный платеж по ДВИ: ~45530 ₽
Якутск, ул. Чернышевского, 56/2

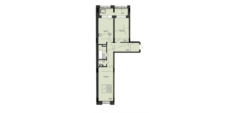
Общая площадь:
67.38 м²
Жилая площадь:
29.14 м²
Этаж:
6 этаж
Подъезд:
3 подъезд
Номер квартиры:
155-3
Высота потолков:
2.8 м
Санузел:
Не указано
Вид из окна:
Не указано
Газ:
Не указано
Отопление:
Не указано