Застройщик
УТУМ+
Первоначальный взнос: ~2 666 000 ₽
Ежемесячный платеж по ДВИ: ~45530 ₽
Якутск, пт. Михаила Николаева


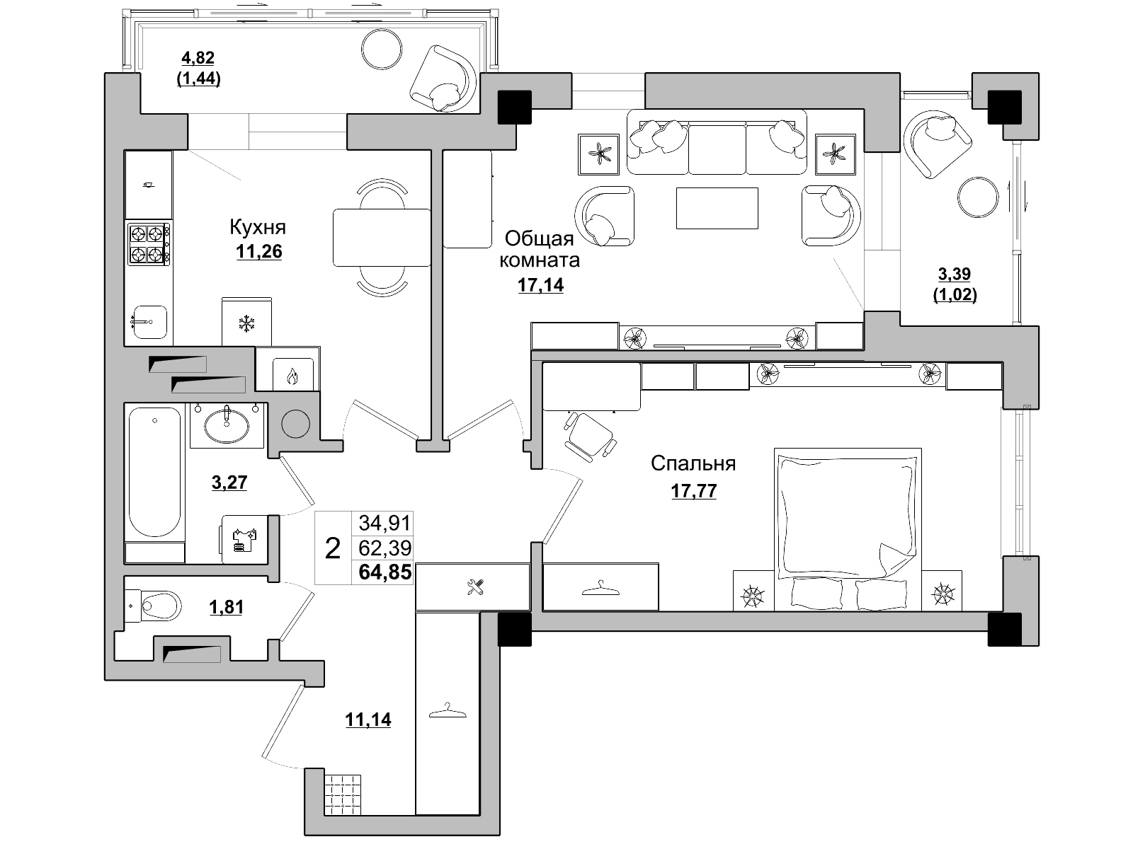
Общая площадь:
64.81 м²
Жилая площадь:
35.65 м²
Этаж:
14 этаж
Подъезд:
1 подъезд
Номер квартиры:
117
Высота потолков:
Не указано
Санузел:
Разделён
Вид из окна:
Не указано
Газ:
Есть
Отопление:
Не указано