Застройщик
УТУМ+
Первоначальный взнос: ~6 473 000 ₽
Ежемесячный платеж по ДВИ: ~45530 ₽
Якутск, ул. Красильникова


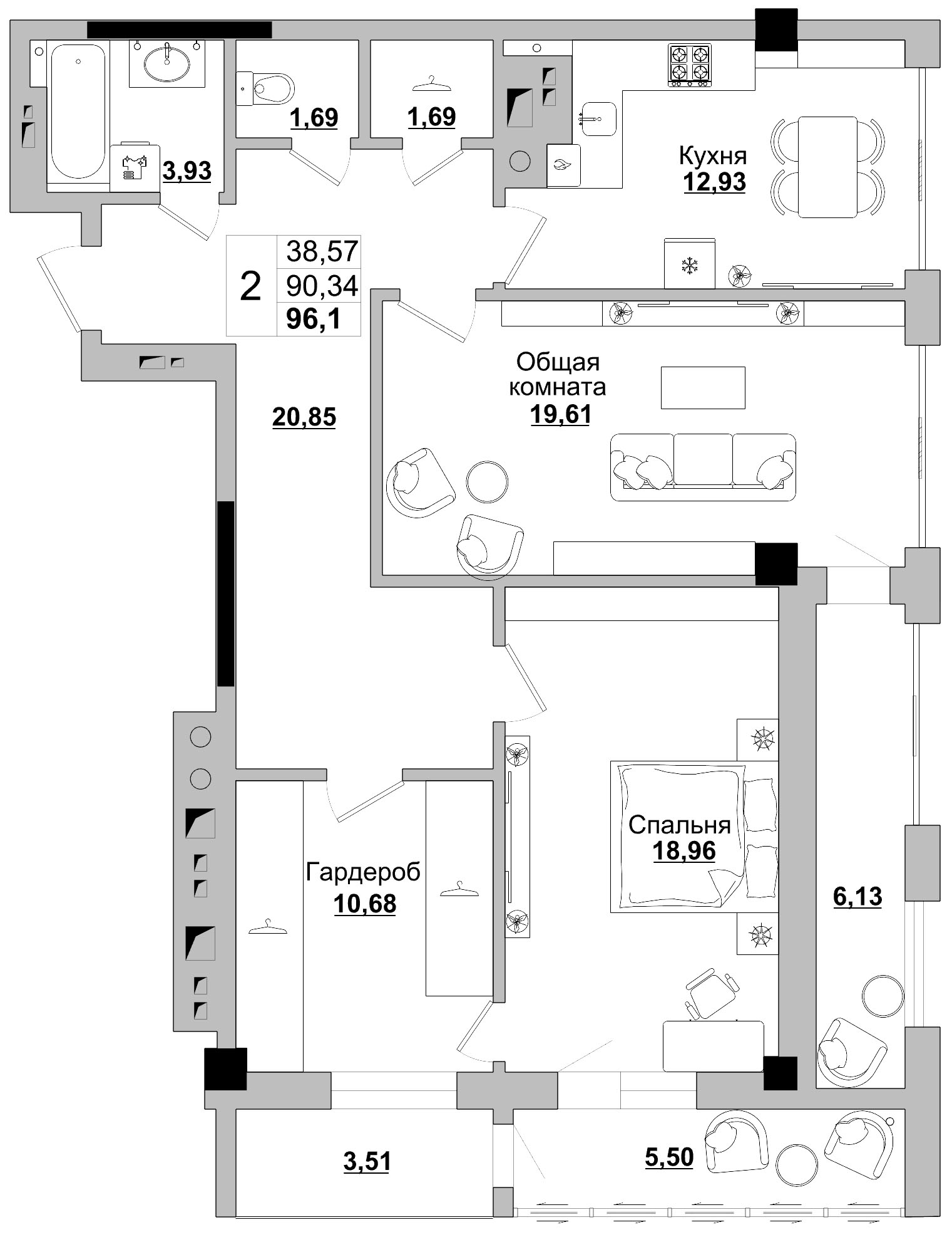
Общая площадь:
96.10 м²
Жилая площадь:
Не указано
Этаж:
12 этаж
Подъезд:
1 подъезд
Номер квартиры:
120
Высота потолков:
Не указано
Санузел:
Совмещён
Вид из окна:
во двор и на улицу
Газ:
Есть
Отопление:
Не указано