Застройщик
Высота
Первоначальный взнос: ~1 482 000 ₽
Ежемесячный платеж по ДВИ: ~29792 ₽
Якутск ул. Генерала Притузова


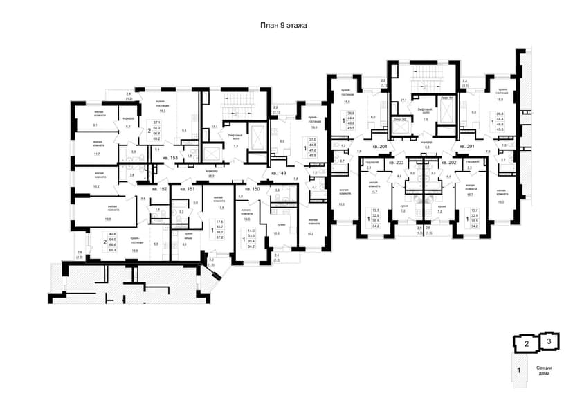
Общая площадь:
45.50 м²
Жилая площадь:
45.50 м²
Этаж:
9 этаж
Подъезд:
3 подъезд
Номер квартиры:
201
Высота потолков:
Не указано
Санузел:
Разделён
Вид из окна:
во двор и на улицу
Газ:
Есть
Отопление:
Автономное домовое