
Застройщик
Высота
Якутск ул. Генерала Притузова


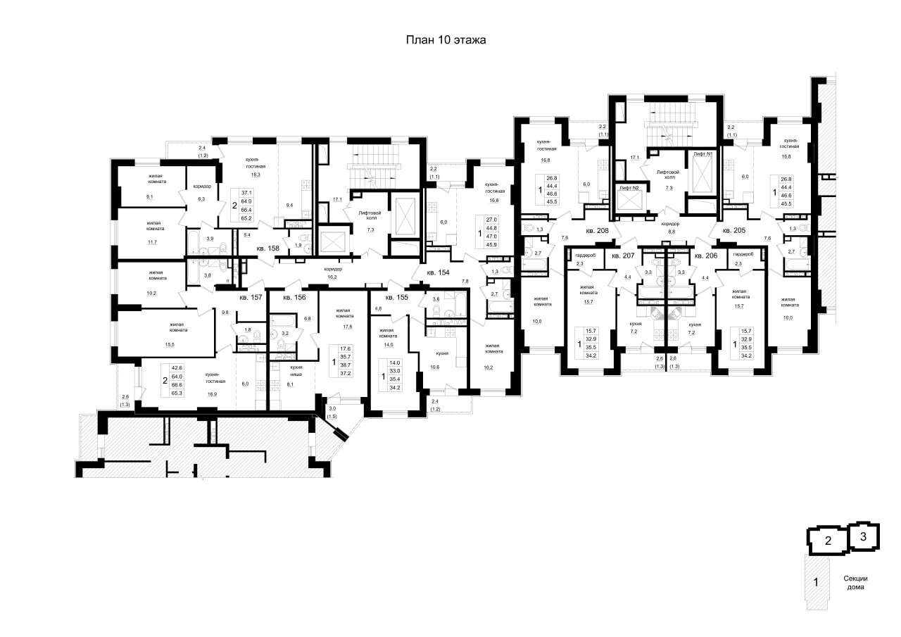
Общая площадь:
45.50 м²
Жилая площадь:
45.50 м²
Этаж:
10 этаж
Подъезд:
3 подъезд
Номер квартиры:
208
Высота потолков:
Не указано
Санузел:
Разделён
Вид из окна:
во двор и на улицу
Газ:
Есть
Отопление:
Автономное домовое