
Застройщик
Высота
Якутск ул. Генерала Притузова


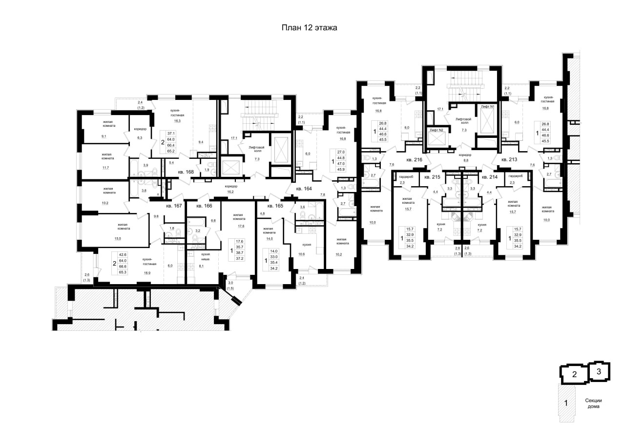
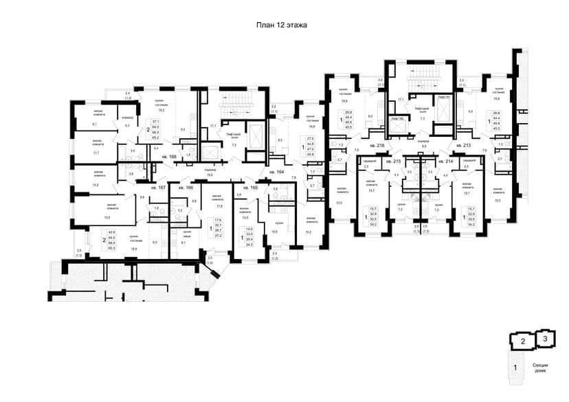
Общая площадь:
65.30 м²
Жилая площадь:
65.30 м²
Этаж:
12 этаж
Подъезд:
2 подъезд
Номер квартиры:
167
Высота потолков:
Не указано
Санузел:
Разделён
Вид из окна:
на улицу
Газ:
Есть
Отопление:
Автономное домовое