Застройщик
Высота
Первоначальный взнос: ~1 495 000 ₽
Ежемесячный платеж по ДВИ: ~30054 ₽
Якутск ул. Генерала Притузова


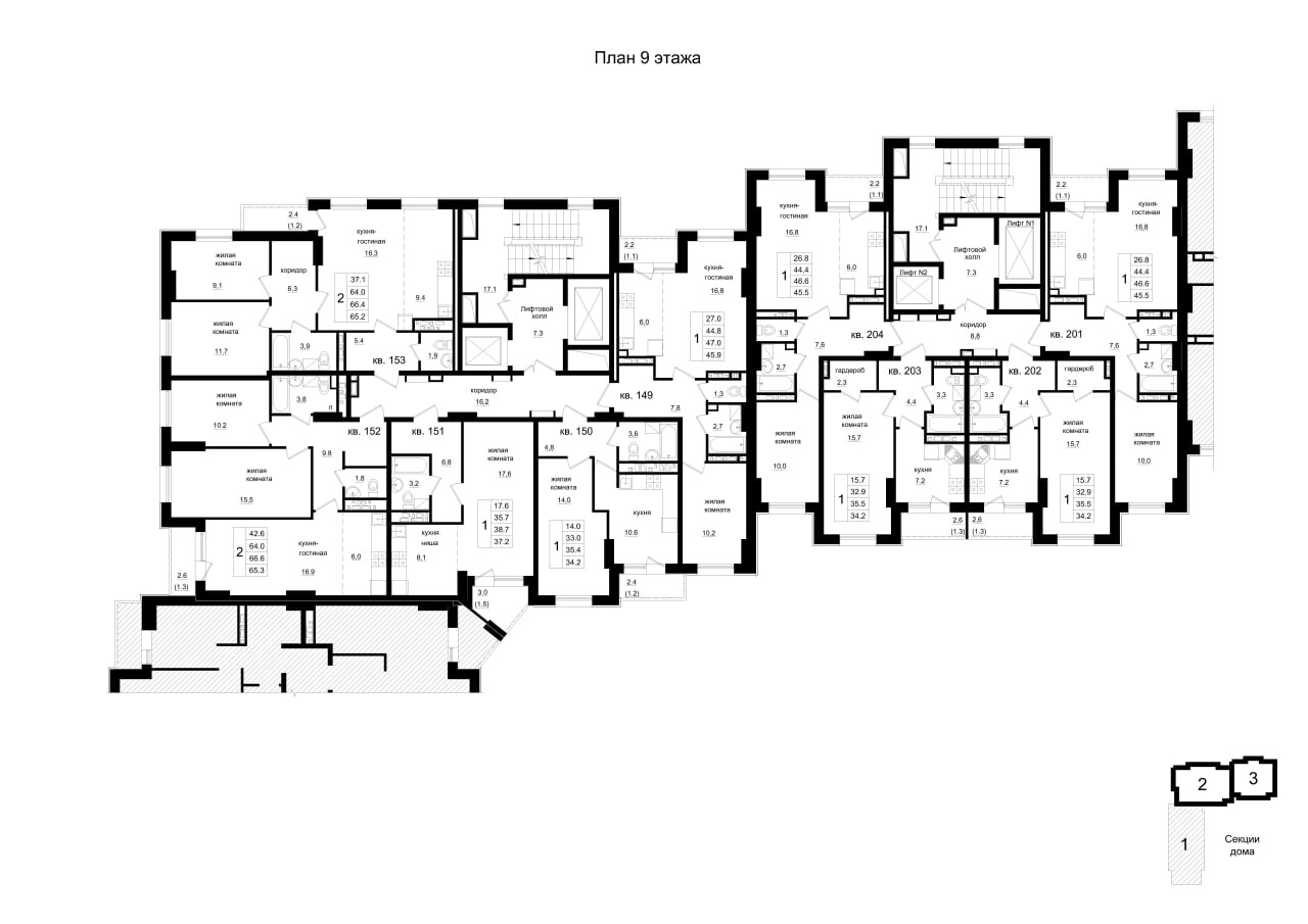
Общая площадь:
45.90 м²
Жилая площадь:
45.90 м²
Этаж:
9 этаж
Подъезд:
2 подъезд
Номер квартиры:
149
Высота потолков:
Не указано
Санузел:
Разделён
Вид из окна:
во двор и на улицу
Газ:
Есть
Отопление:
Автономное домовое