Застройщик
Высота
Первоначальный взнос: ~1 808 000 ₽
Ежемесячный платеж по ДВИ: ~30354 ₽
Якутск ул. Генерала Притузова


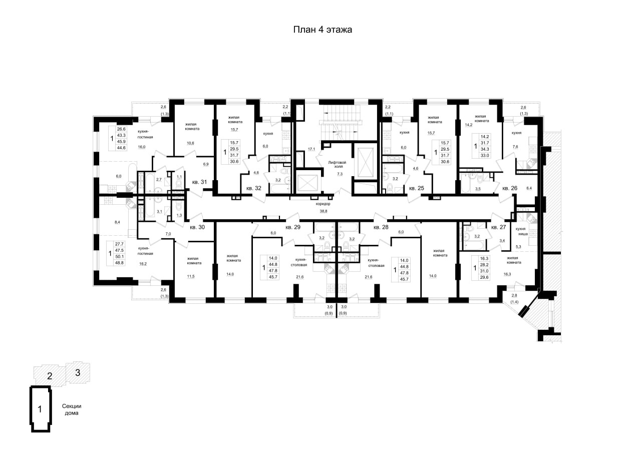
Общая площадь:
48.80 м²
Жилая площадь:
48.80 м²
Этаж:
4 этаж
Подъезд:
1 подъезд
Номер квартиры:
30
Высота потолков:
Не указано
Санузел:
Разделён
Вид из окна:
во двор и на улицу
Газ:
Есть
Отопление:
Автономное домовое