Застройщик
Монтажник
Первоначальный взнос: ~2 110 000 ₽
Ежемесячный платеж по ДВИ: ~42416 ₽
Якутск, ул. Билибина 42/5а


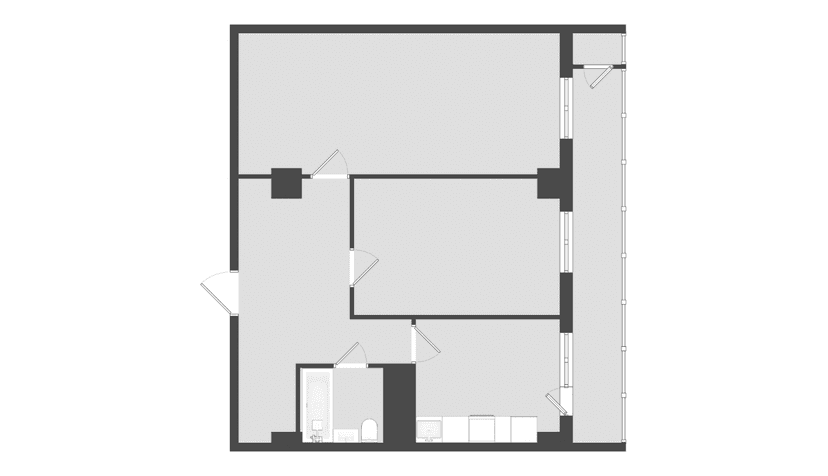
Общая площадь:
69.50 м²
Жилая площадь:
65.30 м²
Этаж:
3 этаж
Подъезд:
1 подъезд
Номер квартиры:
21
Высота потолков:
Не указано
Санузел:
Совмещён
Вид из окна:
во двор
Газ:
есть
Отопление:
Центральное