
Застройщик
Монтажник
Якутск, ул. Билибина 42/5а


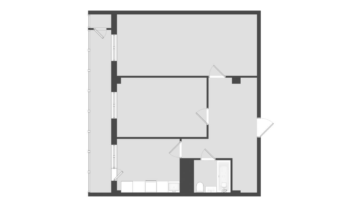
Общая площадь
70.30 м²
Жилая площадь
66.10 м²
Этаж
13 этаж
Подъезд
1 подъезд
Уникальная возможность приобрести с мин ПВ
С общей стоимости квартиры 9 млн р. идёт ипотекой - ДВИ 2 %
Остаток идёт как первоначальный взнос.
Для более подробной консультации просим подойти к нам в офис
С наступлением весны СЗ Монтажник дарит 1 тыс за кв.м. в подарок
Акция действует до конца апреля. Для применения данной акции необходимо выйти на сделку в указанный срок.
До 31.05
Номер квартиры
96
Санузел
Совмещён
Вид из окна
на улицу
Газ
есть
Отопление
Центральное