Застройщик
Монтажник
Первоначальный взнос: ~2 144 000 ₽
Ежемесячный платеж по ДВИ: ~43110 ₽
Якутск, ул. Билибина 42/5а


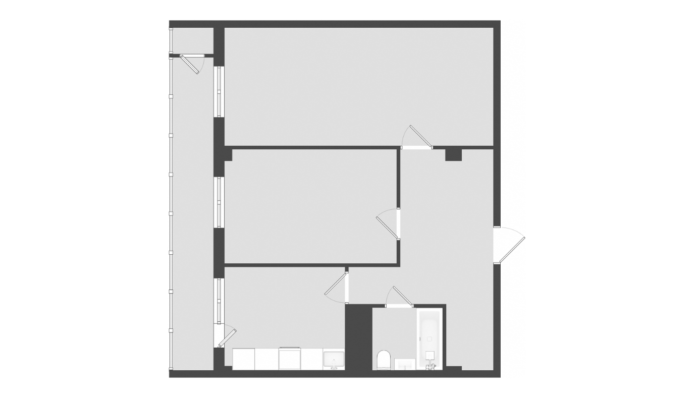
Общая площадь:
70.30 м²
Жилая площадь:
66.10 м²
Этаж:
14 этаж
Подъезд:
1 подъезд
Номер квартиры:
104
Высота потолков:
Не указано
Санузел:
Совмещён
Вид из окна:
на улицу
Газ:
есть
Отопление:
Центральное