Застройщик
Монтажник
Первоначальный взнос: ~1 533 000 ₽
Ежемесячный платеж по ДВИ: ~30354 ₽
Якутск, ул. Билибина 42/5а

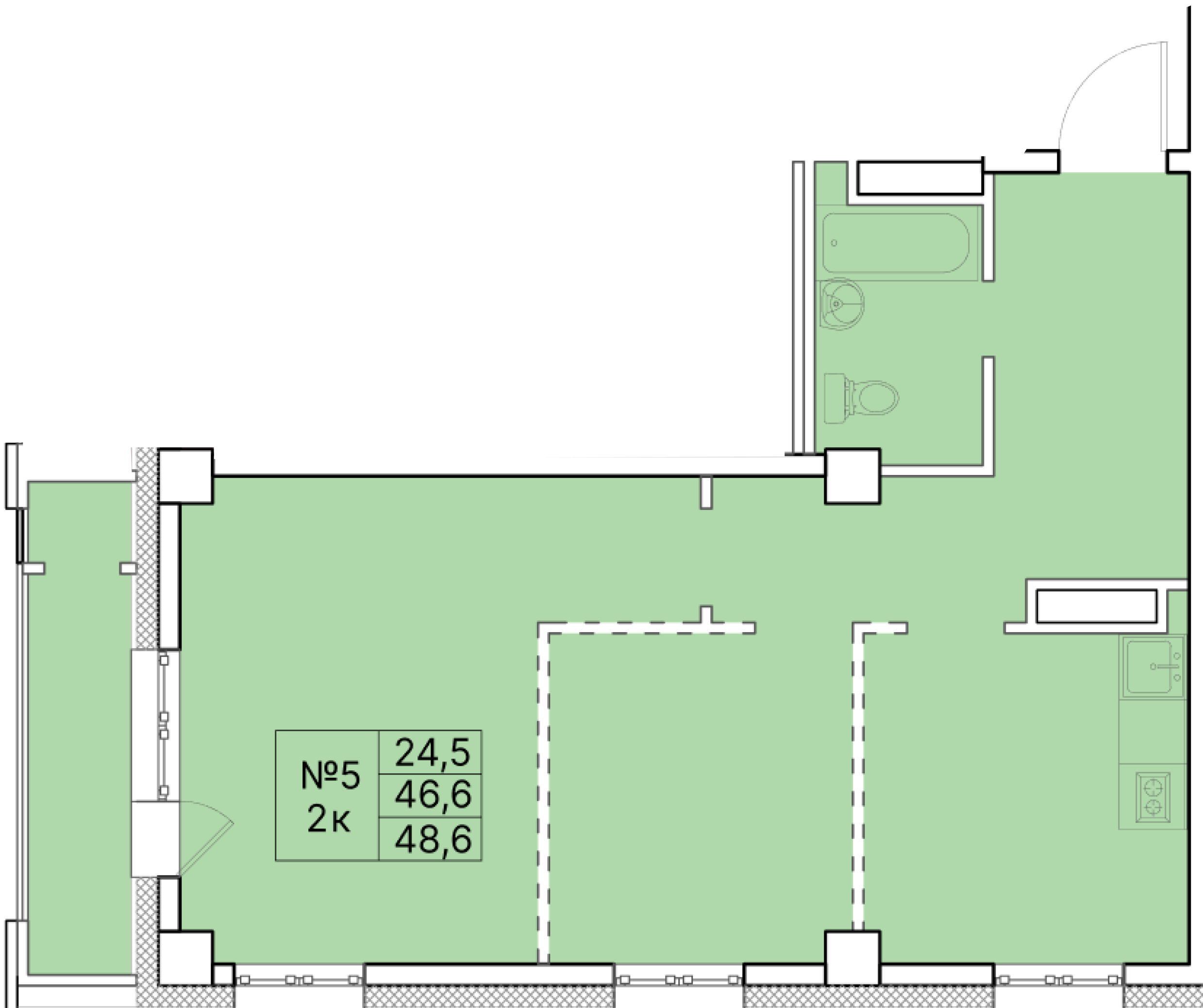
Общая площадь:
48.60 м²
Жилая площадь:
Не указано
Этаж:
10 этаж
Подъезд:
1 подъезд
Номер квартиры:
95
Высота потолков:
Не указано
Санузел:
Совмещён
Вид из окна:
на улицу
Газ:
есть
Отопление:
Центральное