Застройщик
СТК
Первоначальный взнос: ~2 027 000 ₽
Ежемесячный платеж по ДВИ: ~40762 ₽
Покровск, ул. Орджоникидзе

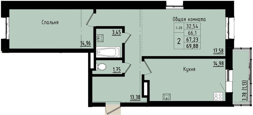
Общая площадь:
67.23 м²
Жилая площадь:
Не указано
Этаж:
5 этаж
Подъезд:
1 подъезд
Номер квартиры:
28
Высота потолков:
Не указано
Санузел:
Совмещён
Вид из окна:
во двор и на улицу
Газ:
есть
Отопление:
Центральное