Застройщик
СТК
Первоначальный взнос: ~1 959 000 ₽
Ежемесячный платеж по ДВИ: ~39391 ₽
Покровск, ул. Орджоникидзе

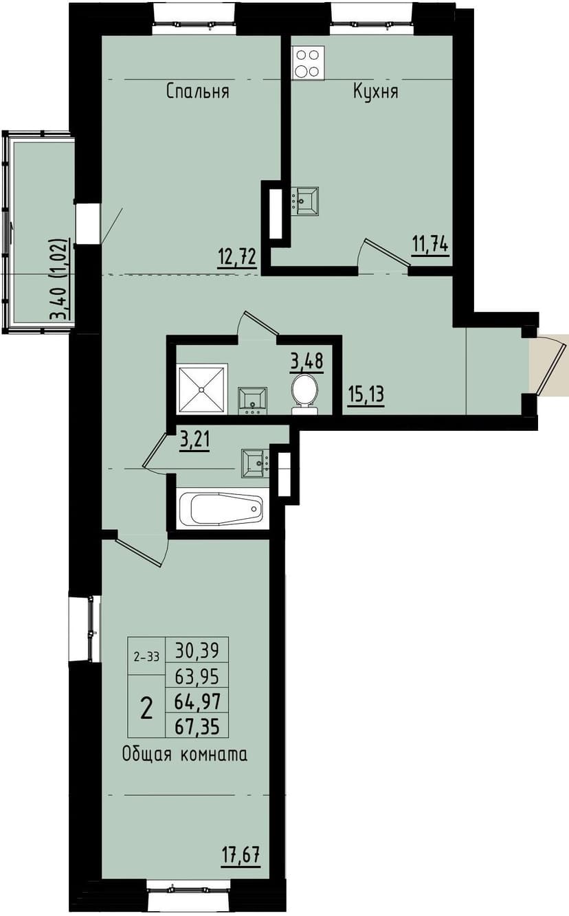
Общая площадь:
64.97 м²
Жилая площадь:
Не указано
Этаж:
7 этаж
Подъезд:
2 подъезд
Номер квартиры:
87
Высота потолков:
Не указано
Санузел:
Совмещён
Вид из окна:
во двор и на улицу
Газ:
есть
Отопление:
Центральное