Застройщик
СТК
Якутск, Республика Саха (Якутия) Вилюйский тракт 4 км
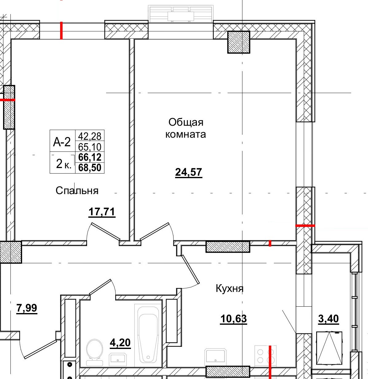
Общая площадь
66.12 м²
Этаж
8 этаж
Подъезд
1 подъезд
Номер квартиры
54
2.00%
8,740,400 ₽
44,217 ₽
1,871,680 ₽