Первоначальный взнос: 1 557 750 ₽

Тип недвижимости:
Квартиры
Цена:
7 750 000 ₽
Тип:
Монолитно-каркасный
Лифт:
Легковой и грузовой
Этаж:
4
Адрес:
Вилюйский тракт 4 километр, 3/1
Район:
Вилюйский тракт
Ремонт:
Без отделки
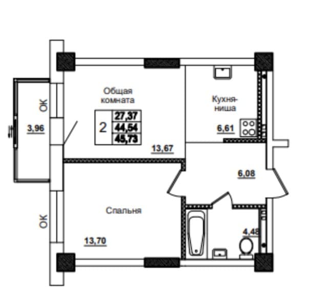
Комнаты:
2 комн.
Агентство:
Панорама
Застройщик:
А112, ООО СЗ
Вид объекта:
Новостройка
Год постройки:
2025
Общая площадь, м²:
44