Первоначальный взнос: 2 260 014 ₽


Тип недвижимости:
Квартиры
Цена:
11 243 850 ₽
Тип:
Монолитно-каркасный
Лифт:
Легковой и грузовой
Этаж:
4
Адрес:
улица Кальвица, 18
Район:
Апельсин
Ремонт:
Требуется ремонт
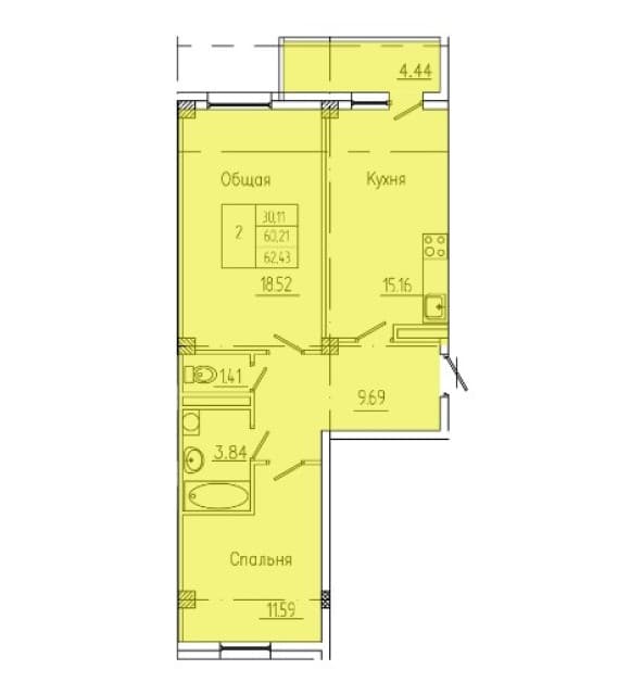
Комнаты:
2 комн.
Агентство:
Главное Агентство Недвижимости
Застройщик:
СЗ Текта, ООО
Вид объекта:
Новостройка
Год постройки:
2025