Первоначальный взнос: 693 450 ₽
Тип недвижимости:
Квартиры
Цена:
3 450 000 ₽
Тип:
Монолитно-каркасный
Лифт:
Легковой
Этаж:
1
Адрес:
Юрия Шафера, 6
Район:
Звездный
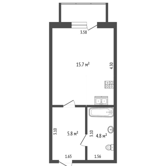
Комнаты:
Студия
Агентство:
Этажи
Вид объекта:
Вторичное жилье
Общая площадь, м²:
26