




Тип недвижимости:
Квартиры
Цена:
8 208 450 ₽
Тип:
Монолитно-каркасный
Лифт:
Легковой и грузовой
Этаж:
9
Адрес:
Строящийся жилой дом
Район:
Прометей, ЖК
Ремонт:
Без отделки
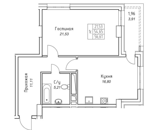
Комнаты:
2 комн.
Агентство:
Алгыс недвижимость
Застройщик:
Прометей, ООО
Вид объекта:
Новостройка
Год постройки:
2025